Fraud Blocker
3
2
1
2
$1.08M
3
2
1
2
$1.08M
House & Land Packages

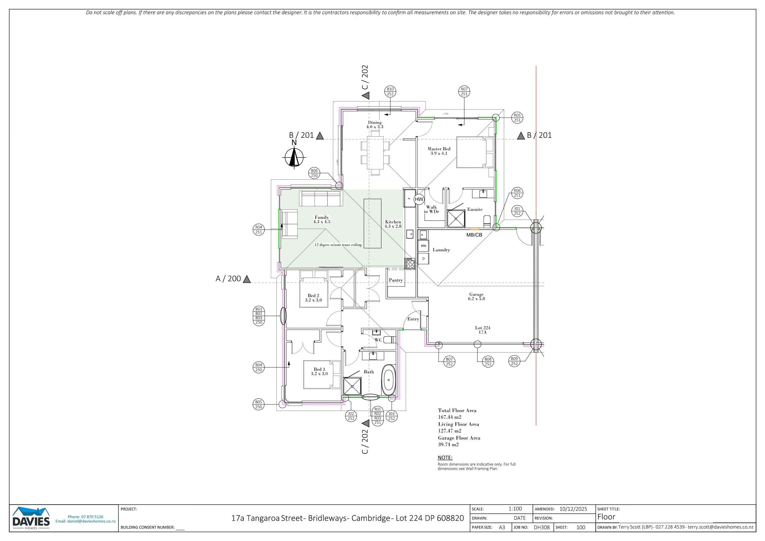
Bridleways Package – 167m2

The Bridleways Estate subdivision is located a few minutes’ drive from the heart of Cambridge. Plans include a primary school, retirement village, local park, walking tracks and easy-access roads, creating more residential and community spaces without sacrificing aesthetic flare. The development will utilise new technologies and green building guidelines to extend Cambridge’s beautiful legacy and create homes that are true investments for the future.
Read more about Bridleways Estate HERE.

Guaranteed to impress

All of our sections in Bridleways Estate will be sold as House & Land packages, with all-inclusive fixed-price contracts.

House & Land Package - 167m2, 17a Tangaroa Street - This home is being built as a spec and is currently under construction, due to finish April 2026, and is priced at $1.08M. Please get in contact with Daniel Davies for more information, 021 228 4537 or daniel@davieshomes.co.nz

 

Why choose Davies Homes?

Floor Plan

Features

  • Council & Consent Fees
  • Engineering & Inspection Fees
  • Architectural Design
  • Excavation, Drainage & Foundations
  • Slimline Water Tank
  • Exterior Claddings
  • Roofing, Fascia & Spouting
  • Wall & Ceiling Insulation
  • Thermally Broken Joinery
  • Solar Energy
  • Ducted Air Con System
  • Architraves, Skirting & Coving
  • Flooring & Wall Finishings
  • Plumbing Fittings
  • Door Hardware
  • Designer Kitchen & Appliances
  • Wardrobe Systems
  • Interior & Exterior Lighting
  • Concrete Drive & Paths
  • Landscaping Design
  • Fencing
  • Kwila Decking
  • Hydroseeded Lawns

Site Plan

Property Details

Photo Gallery